top of page
Villa Imhof Anières (GE)
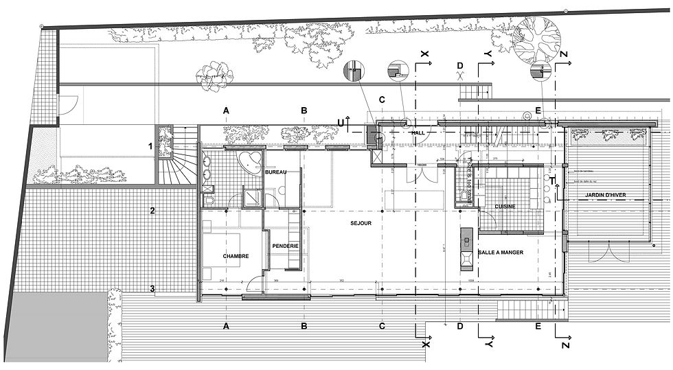
Réalisation d'une nouvelle construction sur la base d'une ancienne villa déjà bien contemporaine pour son époque mais datant des années 1950.
Afin d'en conserver la typologie si expressive du plan libre construit à l'aide d'une ossature (dalles poteaux) tel que l'avait imaginé son concepteur, l'architecte Gaillard, cette transformation a été opérée afin d'en reveler les principes tout en la réhabilitant aux normes en vigueur.
Lors de ces transformations un volume arrière a été annexé à cette villa pour agrandir sa surface et créer un jardin d'hiver.
Cette villa située à Genève sur la commmune d' Anière fait face au lac et offre une magnifique vue à 180 degrés sur le paysage lémanic.
bottom of page






